Description
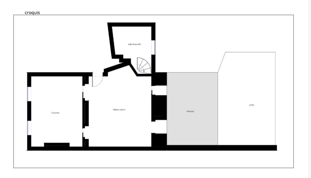
Paris 17ème Cœur des Batignolles / Truffaut. Le Groupe Saint Ferdinand Immobilier vous propose au rez-de-chaussée surélevé d’un immeuble ancien, un magnifique appartement traversant en bon état de 3 pièces composé de : entrée, séjour avec cuisine ouverte équipée, véranda donnant sur un jardin privatif de 19m², chambre, salle de bain-wc, débarras et cave. Belle hauteur sous plafond. Charme de l’ancien. Plan optimisé, sans perte d’espace. Calme et lumineux. Idéalement situé, proche des transports et des commerces. Charges annuelles : 2.508 euros. Estimation des couts annuels d’énergie entre : 1.230 euros et 1.710 euros. Commission incluse de 5 % à la charge de l’acquéreur. Aucune procédure dans la copropriété. Nombre de lots : 17. Les informations sur les risques auxquels ce bien est exposé sont disponibles sur le site Géorisques https://www.georisques.gouv.fr
Charges annuelle de copropriété : 2508 €
* Prix affiché honoraires inclus.
Honoraires : 4.96 % TTC à la charge de l’acquéreur
Nb. de lots dans la copropriété : 17 lots
Syndicat des copropriétaires : Pas de procédure
Détails de l'annonce
- Ville: Paris 17ème
- Prix: 740.000€ *
- Surface: 58.08 m²
- Chambre: 1
- Salle de bains: 1
- Parking: 0
- Année construction: 1900
- Type de bien: Appartement
- Statut: Vente
- Cave
- Gardien
- Parking
Agence