Description
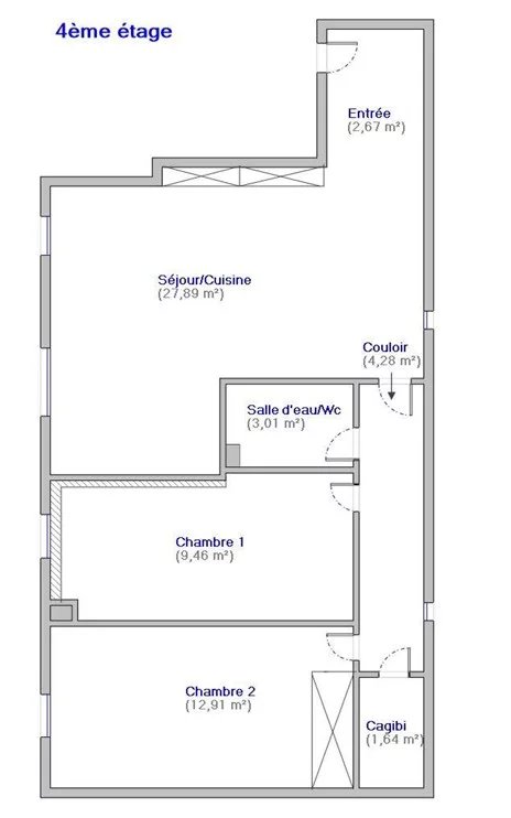
Paris 18ème Proche Batignolles 3 pièces 2 chambres. Le Groupe Saint Ferdinand Immobilier vous propose au 4ème étage d’un bel immeuble en pierre de taille, un magnifique appartement en excellent état de 3 pièces composé de : entrée, grand séjour avec cuisine ouverte équipée, 2 chambres, salle d’eau-wc, buanderie et cave. Nombreux rangements. Plan optimisé, sans perte d’espace. Calme et très lumineux. Idéalement situé, proche des transports et des commerces. Charges annuelles : 2.040 euros. Estimation des couts annuels d’énergie entre : 1.020 euros et 1.410 euros. Commission incluse de 3.91 % à la charge de l’acquéreur. Aucune procédure dans la copropriété. Nombre de lots : 14. Les informations sur les risques auxquels ce bien est exposé sont disponibles sur le site Géorisques https://www.georisques.gouv.fr
Charges annuelle de copropriété : 2040 €
* Prix affiché honoraires inclus.
Honoraires : 3.91 % TTC à la charge de l’acquéreur
Nb. de lots dans la copropriété : 14 lots
Syndicat des copropriétaires : Pas de procédure
Détails de l'annonce
- Ville: Paris 17ème
- Prix: 665.000€ *
- Surface: 62 m²
- Chambres: 2
- Salle de bains: 1
- Parking: 0
- Année construction: 1900
- Type de bien: Appartement
- Statut: Vente
- Cave
- Parking
Agence