Paris 16ème Passy Jardin du Ranelagh

  • 898.000€ *
Exclusivité Vente
Exclusivité Vente

Paris 16ème Passy Jardin du Ranelagh

  • 898.000€ *

Description

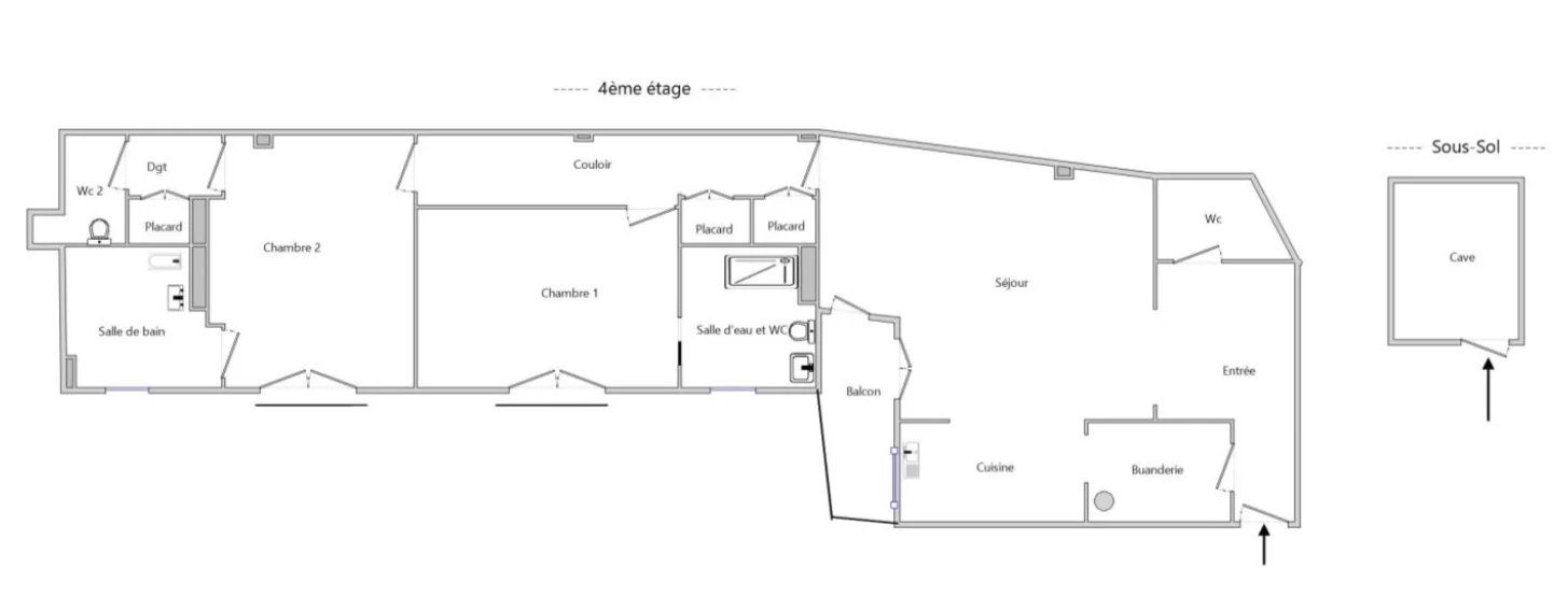
Paris 16ème Passy Jardin du Ranelagh Saint Ferdinand vous propose en exclusivité. un appartement dans un quartier hyper recherché. Il se situe dans une rue résidentielle et calme. au 4 ème étage avec ascenseur. Il est composé d’une entrée. d’un séjour avec un cuisine US ouvrant sur un balcon. de deux chambres avec chacune sa salle de douche et ses toilettes. une buanderie et des toilettes indépendants.Une immense cave de 25 m²complète ce bien.
L’ensemble donne entierement au calme avec des vues agréables. Le plan est très modulable selon les besoins de chacun. Immeuble recherché dans un emplacement privilégié. à visiter rapidement!

Charges annuelle de copropriété : 3768 €
* Prix affiché honoraires inclus.
Honoraires : à la charge du vendeur
Nb. de lots dans la copropriété : Non renseigné
Syndicat des copropriétaires : Pas de procédure

Détails de l'annonce

  • Ville: Paris 16ème
  • Prix: 898.000€ *
  • Surface: 81.66 m²
  • Chambres: 2
  • Salles de bains: 2
  • Parking: 0
  • Année construction: 1980
  • Type de bien: Appartement
  • Statut: Vente
  • Cave
  • Parking

Agence

Boulogne
Boulogne
37 av. Jean Baptiste Clément, 92100 Boulogne
01 84 99 01 00