PARIS XVII.TERNES

  • 1.290.000€ *

PARIS XVII.TERNES

  • 1.290.000€ *

Description

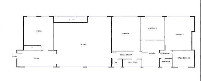
PARIS XVII.TERNES Saint Ferdinand Immobilier vous propose de découvrir dans le quartier des Ternes et dans un immeuble semi récent,
au 5e étage avec ascenseur, ce bel appartement traversant avec balcon ,de 134.7 m2 carrez à rénover, composé d un grand double séjour , une cuisine équipée, 3 chambres, un bureau, une salle de bain, une salle de douche, un toilette séparé.
Une cave complète ce bien.
Possibilité d acquérir un parking en sus dans l immeuble.
Clair, lumineux et ensoleillé.
Proche transports et commerces.
Beau potentiel. Travaux a prévoir.
Les informations et risques auxquels ce bien est exposé sont disponibles sur le site Georiques:georisques.gouv.fr

Charges annuelle de copropriété : 10400.04 €
* Prix affiché honoraires inclus.
Honoraires : 4.03 % TTC à la charge de l’acquéreur
Nb. de lots dans la copropriété : 79 lots
Syndicat des copropriétaires : Pas de procédure

Détails de l'annonce

  • Ville: Paris 17ème
  • Prix: 1.290.000€ *
  • Surface: 134.7 m²
  • Chambres: 3
  • Salles de bains: 2
  • Parking: 0
  • Année construction: 1950
  • Type de bien: Appartement
  • Statut: Vente
  • Cave
  • Parking

Agence

Courcelles
Courcelles
107 rue de courcelles, 75017 Paris
01 43 80 10 17