PARIS 9ème / Pigalle

  • 1.255.000€ *

PARIS 9ème / Pigalle

  • 1.255.000€ *

Description

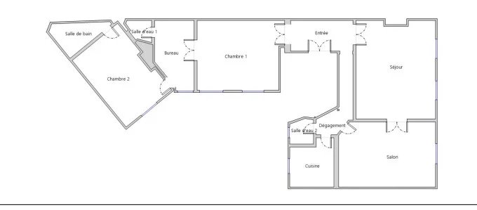
PARIS 9ème / Pigalle Au premier étage d’un immeuble pierre de taille très bien entretenu , le groupe Saint Ferdinand Immobilier vous propose ce très beau 5 pièces ensoleillé et traversant de 126m2 Carrez. L’entrée dessert un vaste double séjour avec une hauteur sous plafond de 3.20, une cuisine indépendante, une chambre parentale avec sa salle d’eau , une deuxième chambre avec rangements, un bureau ou chambre d enfant, une salle de bain et un WC indépendant. Plan modulable facilement avec possibilité de créer une 4 éme chambre. Une cave complète ce bien. L’appartement est très lumineux et calme bien qu il soit sur le boulevard de clichy. Il est possible d’acquérir une chambre de service en sus.
DPE E – Estimation des coûts annuels entre 2170euros et 3000euros. Prix moyen des énergies indexé au 1er janvier 2021.
Les informations sur les risques auxquels ce bien est exposé sont disponibles sur le site Géorisques https://www.georisques.gouv.fr

Charges annuelle de copropriété : 4800 €
* Prix affiché honoraires inclus.
Honoraires : 2.62 % TTC à la charge de l’acquéreur
Nb. de lots dans la copropriété : Non renseigné
Syndicat des copropriétaires : Pas de procédure

Détails de l'annonce

  • Ville: Paris 9ème
  • Prix: 1.255.000€ *
  • Surface: 126.7 m²
  • Chambres: 3
  • Salles de bains: 3
  • Parking: 0
  • Année construction: 1851
  • Type de bien: Appartement
  • Statut: Vente
  • Cave

Agence

Jules JOFFRIN
Jules JOFFRIN
82 rue Ordener 75018 Paris
01 86 22 34 34