Description
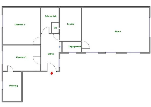
Paris 16ème La Muette / Mozart. 4 pièces 2 chambres. Le Groupe Saint Ferdinand Immobilier vous propose au 1er étage d’un immeuble en pierre de taille avec gardien, un magnifique appartement traversant à rénover de 4 pièces composé de : entrée, double séjour, cuisine équipée, 2 chambres (3eme possible) sur cour arborée, salle de bains, wc indépendant, dressing, cave et un box en supplément. Belle hauteur sous plafond, charme de l’ancien. Plan optimisé, sans perte d’espace. Calme et très lumineux. Idéalement situé, proche des transports et des commerces. Charges annuelles : 4.080 euros. Estimation des couts annuels d’énergie : 2.770 euros et 3.810 euros. Commission incluse de 5.38% à la charge de l’acquéreur. Aucune procédure dans la copropriété. Nombre de lots : 20. Les informations sur les risques auxquels ce bien est exposé sont disponibles sur le site Géorisques https://www.georisques.gouv.fr
Charges annuelle de copropriété : 4080 €
* Prix affiché honoraires inclus.
Honoraires : 5.38 % TTC à la charge de l’acquéreur
Nb. de lots dans la copropriété : 20 lots
Syndicat des copropriétaires : Pas de procédure
Détails de l'annonce
- Ville: Paris 16ème
- Prix: 980.000€ *
- Surface: 90 m²
- Chambres: 3
- Salle de bains: 1
- Parking: 0
- Année construction: 1900
- Type de bien: Appartement
- Statut: Sous promesse
- Cave
- Parking
Agence