Exclusivité. Paris 17ème Moines / Nollet.

  • 695.000€ VENDU
Exclusivité Vendu
Exclusivité

Exclusivité. Paris 17ème Moines / Nollet.

  • 695.000€ VENDU

Description

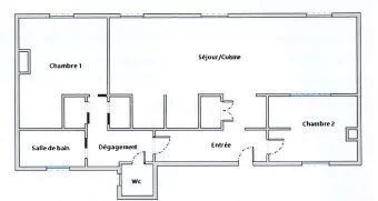
Exclusivité. Paris 17ème Moines / Nollet. Exclusivité. Le Groupe Saint Ferdinand Immobilier vous propose au 1er étage d’un immeuble en pierre de taille, un appartement traversant de 3 pièces refait à neuf avec des matériaux de qualités composé d’une entrée avec rangements, d’un double séjour avec une cuisine ouverte équipée, de 2 chambres avec rangements, d’une salle de bain, un espace buanderie, un toilette séparé et une cave. Local poussettes et vélos. Calme et lumineux : exposé : Sud-est. Plan optimisé. Charme de l’ancien : parquet, moulures et cheminée. Hauteur sous plafond : 2.80 m. A proximité des commerces de la rue des Moines et du Square des Batignolles. Charges annuelles : 1.440 euros. Estimation des couts annuels d’énergie : entre 1.152 euros et 1.558 euros. Commission incluse de 3.73 % à la charge de l’acquéreur. Les informations sur les risques auxquels ce bien est exposé sont disponibles sur le site Géorisques https://www.georisques.gouv.fr

Charges annuelle de copropriété : 1440 €
* Prix affiché honoraires inclus.
Honoraires : 3.73 % TTC à la charge de l’acquéreur
Nb. de lots dans la copropriété : Non renseigné
Syndicat des copropriétaires : Pas de procédure

Détails de l'annonce

  • Ville: Paris 17ème
  • Prix: 695.000€ VENDU
  • Surface: 53.94 m²
  • Chambres: 2
  • Salle de bains: 1
  • Parking: 0
  • Année construction: 1882
  • Type de bien: Appartement
  • Statut: Vendu
  • Cave
  • Parking

Agence

Batignolles
Batignolles
21 rue des moines, 75017 Paris
01 53 24 01 00

Comparer les annonces

Comparer
Batignolles
  • Batignolles