Description
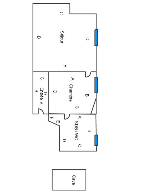
Exclusivité. Paris 17ème Batignolles / Moines. Exclusivité. Le Groupe Saint Ferdinand Immobilier vous propose au 2ème étage d’un immeuble en pierre de taille, un appartement de 31m² en bon état de 2 pièces composé de : entrée, séjour avec cuisine équipée, chambre avec rangements, salle d’eau-wc et cave. Plan optimisé, sans perte d’espace. Calme et lumineux. Idéalement situé, proche des transports et des commerces. Charges annuelles : 996euros. Estimation des couts annuels d’énergie : entre 857 euros et 1 159 euros.Commission incluse de 5.28 % à la charge de l’acquéreur. Aucune procédure dans la copropriété. Nombre de lots : N.C Les informations sur les risques auxquels ce bien est exposé sont disponibles sur le site Géorisques https://www.georisques.gouv.fr
Charges annuelle de copropriété : 996 €
* Prix affiché honoraires inclus.
Honoraires : 5.28 % TTC à la charge de l’acquéreur
Nb. de lots dans la copropriété : Non renseigné
Syndicat des copropriétaires : Pas de procédure
Détails de l'annonce
- Ville: Paris 17ème
- Prix: 299.000€ VENDU
- Surface: 31 m²
- Chambre: 1
- Salle de bains: 1
- Parking: 0
- Année construction: 1900
- Type de bien: Appartement
- Statut: Vendu
- Cave
- Gardien
- Parking
Agence